Bỏ qua để đến Nội dung

NX X Essentials: Giải pháp tạo bản vẽ kỹ thuật trực tuyến tối ưu cho dân cơ khí

Khi nói tới thiết kế kỹ thuật trong ngành cơ khí – tự động hóa, việc tạo bản vẽ kỹ thuật là khâu then chốt giúp hiện thực hóa ý tưởng thành sản phẩm cụ thể. NX™ X Design Essentials Add-on của Siemens chính là công cụ tối ưu, giúp kỹ sư tạo bản vẽ mọi lúc, mọi nơi ngay trên trình duyệt – không còn giới hạn nhờ vào nền tảng đám mây hiện đại.

Dễ dàng tạo bản vẽ kỹ thuật với NX X Essentials

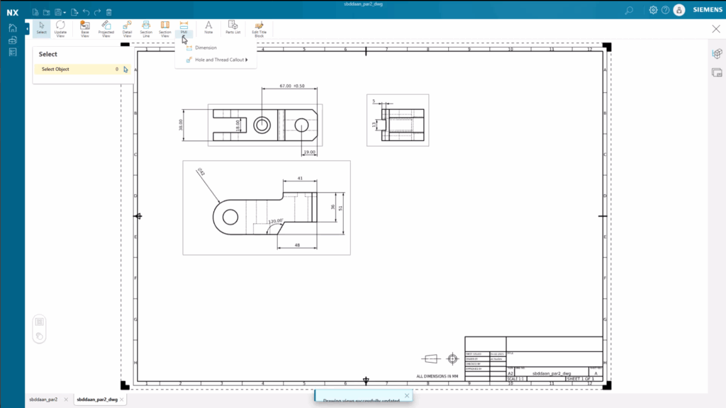
Với NX X Essentials, việc tạo bản vẽ từ mô hình 3D trở nên cực nhanh chóng cho mọi kỹ sư. Chỉ cần chọn kích thước giấy và template phù hợp, bạn đã có ngay môi trường làm việc tối ưu. Việc xác lập các hình chiếu cũng rất trực quan; mỗi góc nhìn của sản phẩm đều có thể biến thành "base view" và tùy chỉnh tỷ lệ dễ dàng. Đặc biệt, tính năng chiếu phối cảnh dạng trực giao giúp sinh tự động các hình chiếu phụ chỉ bằng thao tác kéo chuột xung quanh hình chiếu cơ sở.

Môi trường tạo bản vẽ kỹ thuật với NX X Essentials: Chọn template, tỷ lệ, tạo các hình chiếu thuận tiện và trực quan

Kết nối thông tin PMI thông minh

NX X Essentials đồng hành cùng bạn với việc tích hợp thông tin Product and Manufacturing Information (PMI). Việc đưa chú thích 3D sang bản vẽ 2D hoặc bổ sung PMI trên bản vẽ 2D dễ dàng, thuận tiện. Công cụ thêm kích thước, dung sai, ghi chú mạnh mẽ, kết hợp nhiều phương pháp đo như tự động, điểm-điểm, góc... giúp mọi chi tiết đều đầy đủ thông số để sản xuất chính xác.

Cập nhật nhanh chóng – Tăng hợp tác trong thời gian thực

Mỗi lần có thay đổi thiết kế trên mô hình 3D, bản vẽ kỹ thuật sẽ có cảnh báo ngay rằng đã lỗi thời. Bạn chỉ cần một cú click để đồng bộ bản vẽ với mô hình mới, tránh tất cả sai lệch giữa 3D và 2D. Đặc biệt, việc chèn nhanh các chú thích về lỗ khoan, ren (tuyến tính hoặc dạng tròn) cũng rất trực quan. Khi không còn cần PMI, chỉ cần loại bỏ để đảm bảo bản vẽ luôn rõ ràng, chuẩn xác.

Thêm ghi chú lỗ khoan và ren trên bản vẽ 2D từ mô hình NX X Essentials, tăng tính chính xác cho sản xuất.

Tùy chỉnh linh hoạt – Tổng hợp tối ưu cho mọi nhu cầu

Bạn hoàn toàn kiểm soát từng hình chiếu: chỉnh lại tỷ lệ bất cứ khi nào, ẩn/hiện đường khuất, thêm nhãn riêng… Nhờ đó, bản vẽ thể hiện đầy đủ ý đồ thiết kế, phục vụ công việc giữa các bộ phận liên quan một cách chuẩn xác và nhanh chóng.

Giải pháp CAD Cloud Native – Đồng hành hiện đại cho đội nhóm kỹ thuật

Phần mềm Siemens NX X Essentials hội tụ công nghệ CAD cloud-native tối tân, cho phép làm việc, tương tác và sáng tạo mọi lúc, mọi nơi. Sự linh hoạt này tăng mạnh hiệu quả phối hợp nhóm, hỗ trợ thích ứng dễ dàng khi mở rộng quy mô. Đồng thời, sản phẩm tích hợp mượt mà với hệ sinh thái Siemens Xcelerator, khai thác tối đa nguồn lực doanh nghiệp.

Bước vào tương lai thiết kế cùng NX X Essentials

Hãy sẵn sàng khám phá trải nghiệm thiết kế đa nền tảng, tốc độ và hiệu quả: Xem thêm thông tin tại đây hoặc dùng thử miễn phí 30 ngày để cảm nhận sức mạnh khác biệt!

Tham khảo thêm hướng dẫn sử dụng qua hai video demo dưới đây:

Bạn đang tìm kiếm phần mềm CAD hiện đại nhằm tăng tốc thiết kế, đảm bảo chất lượng bản vẽ và tối ưu hiệu quả làm việc nhóm? Hãy để đội ngũ MICAD tư vấn chi tiết về NX X Essentials, nhận ưu đãi và hỗ trợ kỹ thuật chuyên sâu cho lĩnh vực cơ khí – tự động hóa tại Việt Nam. Đăng ký tư vấn ngay hôm nay: https://micad.vn/bao-gia/

Bạn đang tìm kiếm giải pháp CAD trực tuyến giúp tăng tốc thiết kế và tạo bản vẽ chính xác cho công việc cơ khí – tự động hóa? Liên hệ ngay đội ngũ chuyên gia tại MICAD để được tư vấn chi tiết về NX X Essentials, nhận báo giá ưu đãi cũng như hỗ trợ kỹ thuật chuyên sâu. Hãy để chúng tôi đồng hành cùng bạn trên hành trình chuyển đổi số và phát triển doanh nghiệp mạnh mẽ hơn!
NX X Essentials: Giải pháp tạo bản vẽ kỹ thuật trực tuyến tối ưu cho dân cơ khí
5 tháng 11, 2025
Chia sẻ bài này
Thẻ
Lưu trữ
Khai phá trải nghiệm kỹ thuật tương tác như J.A.R.V.I.S. cùng NX Immersive Designer